Σε ένα βιομηχανικό κτίριο που λειτουργούσε ως γκαλερί, οι MoY studio συστήνουν μια νέα χωρική συνθήκη μέσω ενός κύβου που παραλαμβάνει χρήσεις και διαμοιράζει ιδιωτικούς και δημόσιους χώρους για την κατοίκηση ενός πατέρα με τον γιο του.
Ο χώρος, που βρίσκεται σε ένα βιομηχανικό κτήριο στο κέντρο της Αθήνας, είχε σχεδιαστεί αρχικά το 1995 από τον αρχιτέκτονα Χρήστο Παπούλια ως γκαλερί. Η αποστολή μας ήταν να τον μεταμορφώσουμε σε μία ευρύχωρη κατοικία για ένα πατέρα κι ένα γιό.
Σύντομα καταλάβαμε ότι έπρεπε να παρέμβουμε δραστικά στη διαρρύθμιση προκειμένου να βρουν τη θέση τους οι νέες χρήσεις. Ήμασταν όμως εξίσου αναγκασμένες να δημιουργήσουμε ένα διάλογο με την προηγούμενη πρόταση, έστω ετεροχρονισμένο.
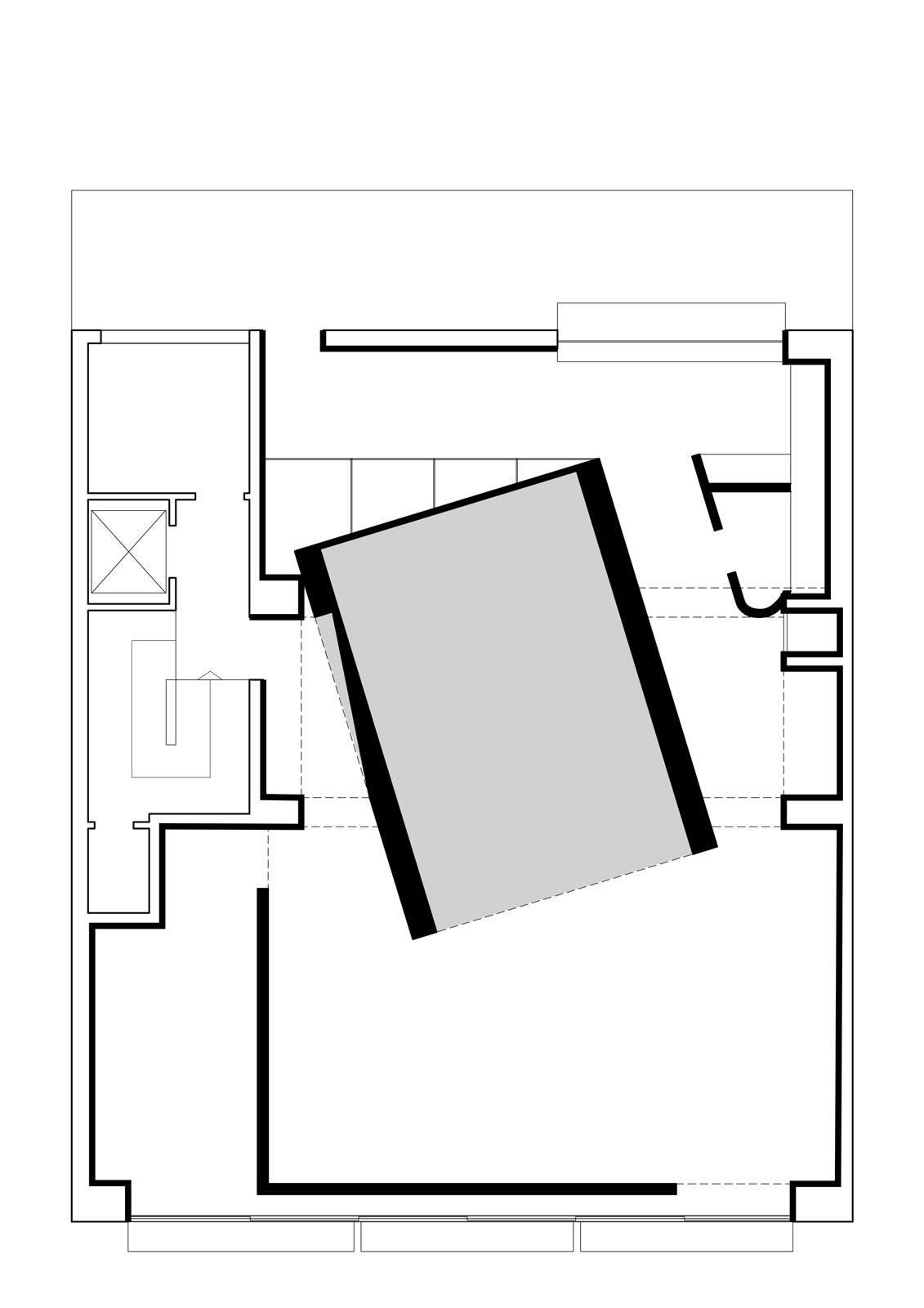
Ο Παπούλιας είχε αγνοήσει πλήρως το υφιστάμενο κέλυφος της πολυκατοικίας και είχε εγκαταστήσει στη μέση του χώρου ένα κύβο σε στροφή.
Έτσι με τη σειρά μας, αγνοήσαμε κι εμείς το υφιστάμενο κέλυφος, και ρίξαμε στη μέση του χώρου ένα νέο κύβο, αυτή τη φορά ευθυγραμμισμένο με τους εξωτερικούς τοίχους.


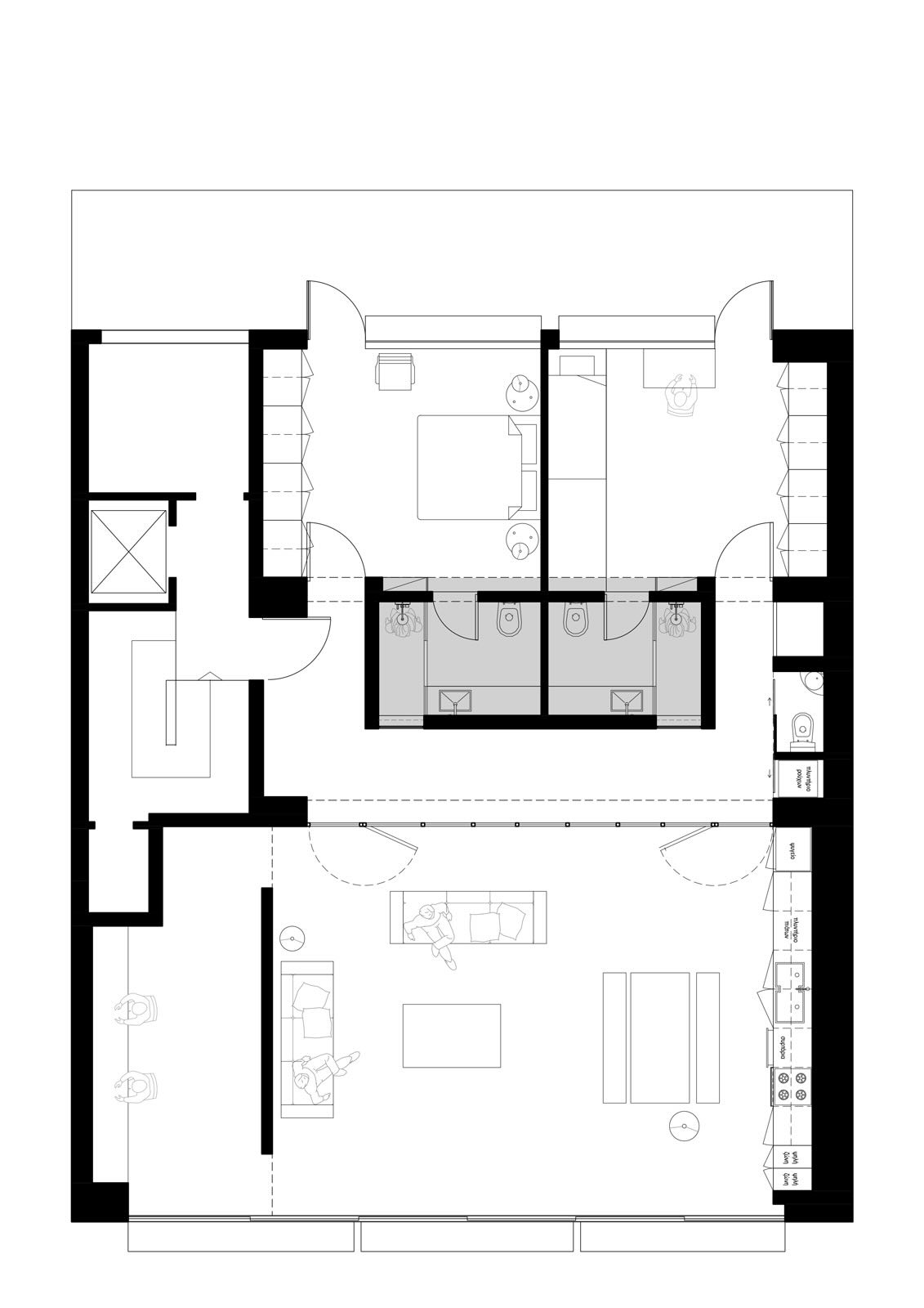
Ο νέος κύβος, στιβαρός και κατασκευασμένος από εμφανείς τσιμεντόλιθους, αποτελεί το μόνο συμπαγές στοιχείο από την πρόσοψη ως την πίσω πλευρά του κτηρίου.
Παραλαμβάνει τα δύο όμοια ανεξάρτητα λουτρά πατέρα και γιου κι απομακρύνει τα δύο όμοια υπνοδωμάτια από τους χώρους διημέρευσης.
Μία γραμμική τζαμαρία από άκρη σε άκρη προσγειώνεται μπροστά του και δημιουργεί ένα σαφές όριο ανάμεσα στο δημόσιο και το ιδιωτικό, το θόρυβο και την ησυχία. Μια σειρά από κλειστά στοιχεία, κουζίνα, γραφείο, ντουλάπες wc, τακτοποιούνται στους πλαϊνούς τυφλούς τοίχους. Στην αισθητική του «λευκού κύβου» με τις λείες επιφάνειες και τα ουδέτερα χρώματα, αντιτάξαμε αδρά υλικά που είτε αποκαλύψαμε και συντηρήσαμε, είτε φέραμε εκ νέου καθώς και συνθέσεις βαφής από τα τρία βασικά χρώματα.
Σε άλλα νέα, 15 παραστάσεις που αξίζει να δείτε το φθινόπωρο στα θέατρα της Αθήνας.
Μέσα στα ευρήματα της κατεδάφισης ήταν και ένας παροπλισμένος ακάλυπτος χώρος στο πίσω μέρος, που ενεργοποιήσαμε εκ νέου ως βεράντα των υπνοδωματίων. Το κίτρινο χρώμα του φέρνει μια απόκοσμη λάμψη «τεχνητού ηλίου» που διαχέεται από τα δωμάτια ως το καθιστικό και την τραπεζαρία.
Στοιχεία έργου
Τίτλος έργου Ο κύβος ερρίφθη
Τυπολογία Αλλαγή χρήσης και ανακαίνιση
Τοποθεσία Αθήνα
Αρχιτεκτονική μελέτη MoY studio, Έλενα Ζαμπέλη – Κατερίνα Χρυσανθοπούλου
Φάση Υλοποιημένο (2022)
Φωτογραφία Νίκος Αλεξόπουλος
Kείμενο από τους δημιουργούς
Αναδημοσίευση από archisearch.gr
Penny Chorafa
